ENCOUNTER
◆コンセプト
西武新宿線久米川駅から徒歩2分の飲食店の改修計画である。間口は2.3m、室面積17㎡と狭小の規模に加えて、施主要望の客席8席、店名:[ENCOUNETR]という条件の中で利用者、料理人双方にとって居心地の良い空間が求められた。少し特殊なのは店名だ。通例個人店の店名は工事終盤に決まったりすることもザラにある。[ENCOUNTER]は英語で[:遭遇、出会い]という意味。頭の片隅に置きながら設計をスタートした。店名は[ENCOUNTER]だ。
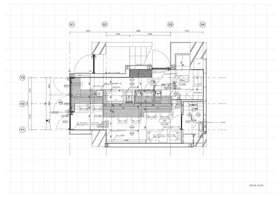
狭い空間でいい塩梅。ます初めにカウンターを室形状に倣って雁行させることで空間を分節し小さく考えた。ただただまっすぐ並んで座るのではなく、2人くらいのグループが3組座ると料理人にとっては視線を和らげるような役割を持つ。お客にとっては他のお客とのつながりに距離ができ落ち着きを保つ。それらを大きく分ける厨房と客席。一方では人が働いているがもう一方は食べに来るという対の関係になる。ところが、良い飲食店というのは何やら関係性があってお客さんと従業員に一体感がある。空間がいいとか常連客が来るとか料理が美味しいとか。それぞれの空間の性質の境に段差、隙間、高さを用いて厨房機器や棚や机を配置し、単純な作為と小空間の特徴を生かして新しい店舗の形式となるよう目指した。
ばらばらなカウンターは厨房(室1)と客席(室2)を対等な大きさの室として優しく区切る。手前のカウンターは奥行きが狭いが、窓面に面していて風や街の賑わい感じ取れる。奥のカウンターは奥行きが広いが後ろに棚や机などがある。窓面に沿って生き物の触手のように伸ばすとテイクアウトのカウンターや肘掛けみたいにもなる。一見狭そうな室内において、良い点もそうでない点も満遍なく分け与えることで狭くても居心地のよい空間を助長していくと信じている。これから空間がカウンターを中心にどのように育っていくか見守っていきたい。
始まりと終わり。誰でも一度はテレビで見たことがある透明のアクリルに蟻を入れると掘り進んでいる様子が見える。掘っている蟻達は当たり前のようにスタートからゴールまで掘り続ける。建築設計も同様に穴を掘り下げると自分には見えていなことが他者には見えていたりする。事実オープンハウスを通じてフィードバックを求めたりする。他者の視点は設計の面白みの一つであると思う。今回は設計案について他の建築家に批評を書いていただいた。アクリルの蟻ではないが、違った見え方も発信していきたい。
雨宮脩大
◆川又修平による批評
店舗の計画において、そのお店特有の世界観を実現することは非常に重要なクライテリアであるが、ともすると閉鎖的になりやすく、あるいは世界観自体がパターン化されたものに回収される、といった難しさがあるように思う。〈encounter〉では厳しい条件のなか、どちらの難しさにも陥らない設計となっている。
木造商店由来の間口の狭い閉鎖的な構えの飲食店と近年開発されたであろう中高層の集合住宅が混ざりながら建ち並ぶ通りに位置する〈encounter〉。駅から歩いて行くと、間口いっぱいに開放された構えは小さいけれど、通りの空気を明るく変えている。それは、〈encounter〉の特有のつくりによるものにみえた。狭小店舗のため、与件から客席と厨房の面積配分がほぼ1:1の平面計画となる。そうすると、その境界をつくるカウンターは自ずと間口の中央に陣取る配置となる。そこから、客席側あるいは厨房側の要望に押し合いへし合いされながら、クランクし、凹んだり膨らんだり、棚になったり机になったり、何とか互いを調停するよう変形されていく。しかしながらカウンターとしての一体性はなんとかキープする。その姿は、なんだか身をよじりながらぎりぎりの体勢で踏ん張っているようで、カウンター自体に愛着を覚えるものだった。そこに人が入り、使い始めるといつの間にか通りから覗いた店内は、どちらが客席でどちらが厨房なのか判然としない状態に近づいている。そこでは店舗然としたお客と店員というスタティックな関係はゆるやかに解体され、何やら大きなカウンターを囲んだ楽し気な空気となって通りに流れ出す。訪れたのは開店してまだ間もない時期で運用としても試行錯誤の最中だったと思うけれど、店作りの思想とそれを支える店舗設計は既にうまく噛み合い、これからどんな場所になろうとしているのかを感じることができた。
川又修平




©️芳野航太






